SYSTEMS
Ceramic Facade Systems
Sinterflex Facade Systems
Compact Laminated Facade Systems
Frontek Facade System
Terra Cotta Facade Systems
Fibrecement Cladding Systems
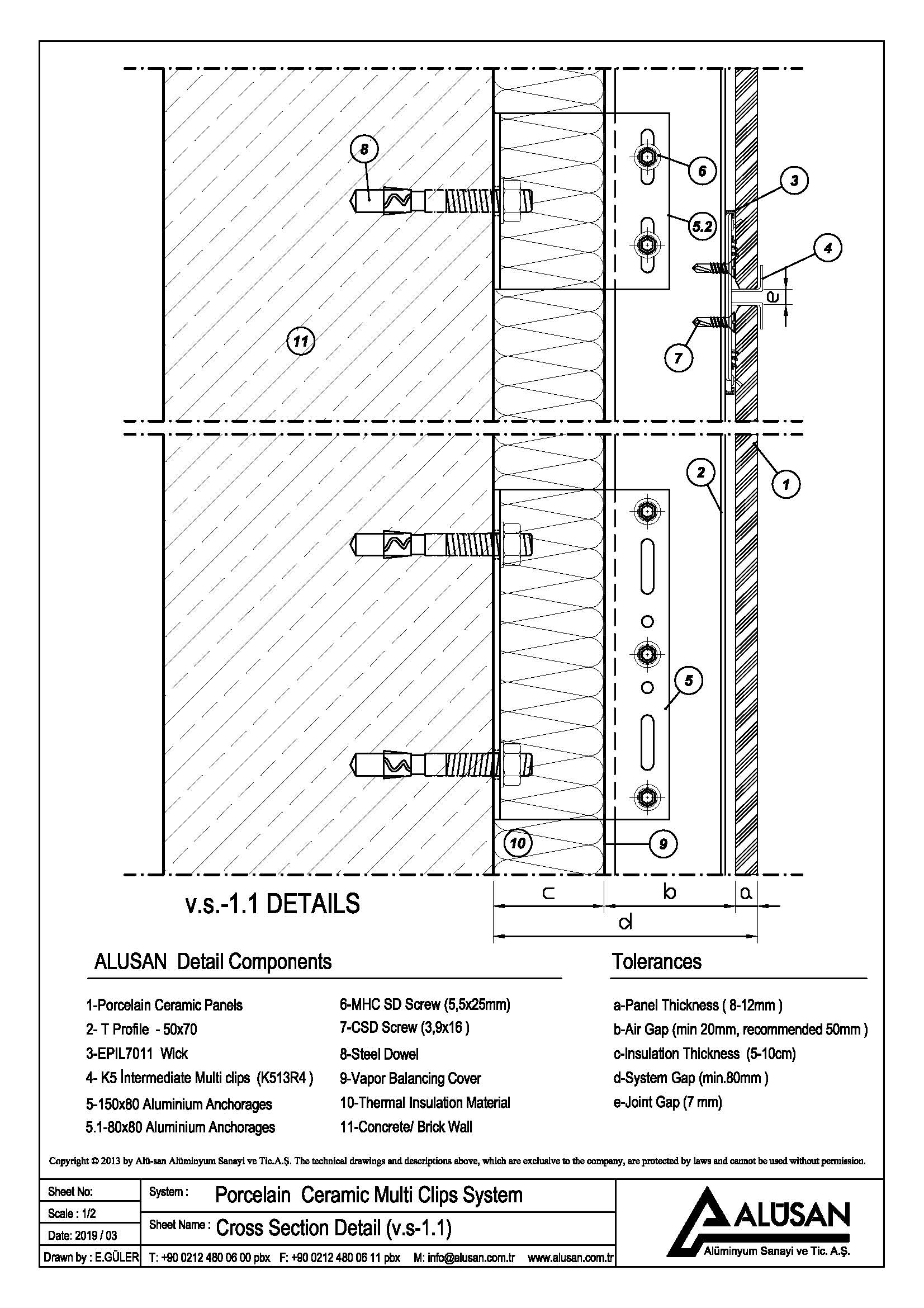
4 Clıp-On System
Aluminum anchors and vertical bearing T profiles are formed on the sub-construction of the ceramic tiles depending on the location of 4 or 2 with intermediate and lower stainless clips are fixed to the carrier profiles. The epdm wicks in the clips prevent direct contact of the ceramic to the profile and ensure a good fit in the clips. Stainless Clips can be painted in Ral Color. Economical application is a fast and safe system.
