SYSTEMS
Ceramic Facade Systems
Sinterflex Facade Systems
Compact Laminated Facade Systems
Frontek Facade System
Terra Cotta Facade Systems
Fibrecement Cladding Systems
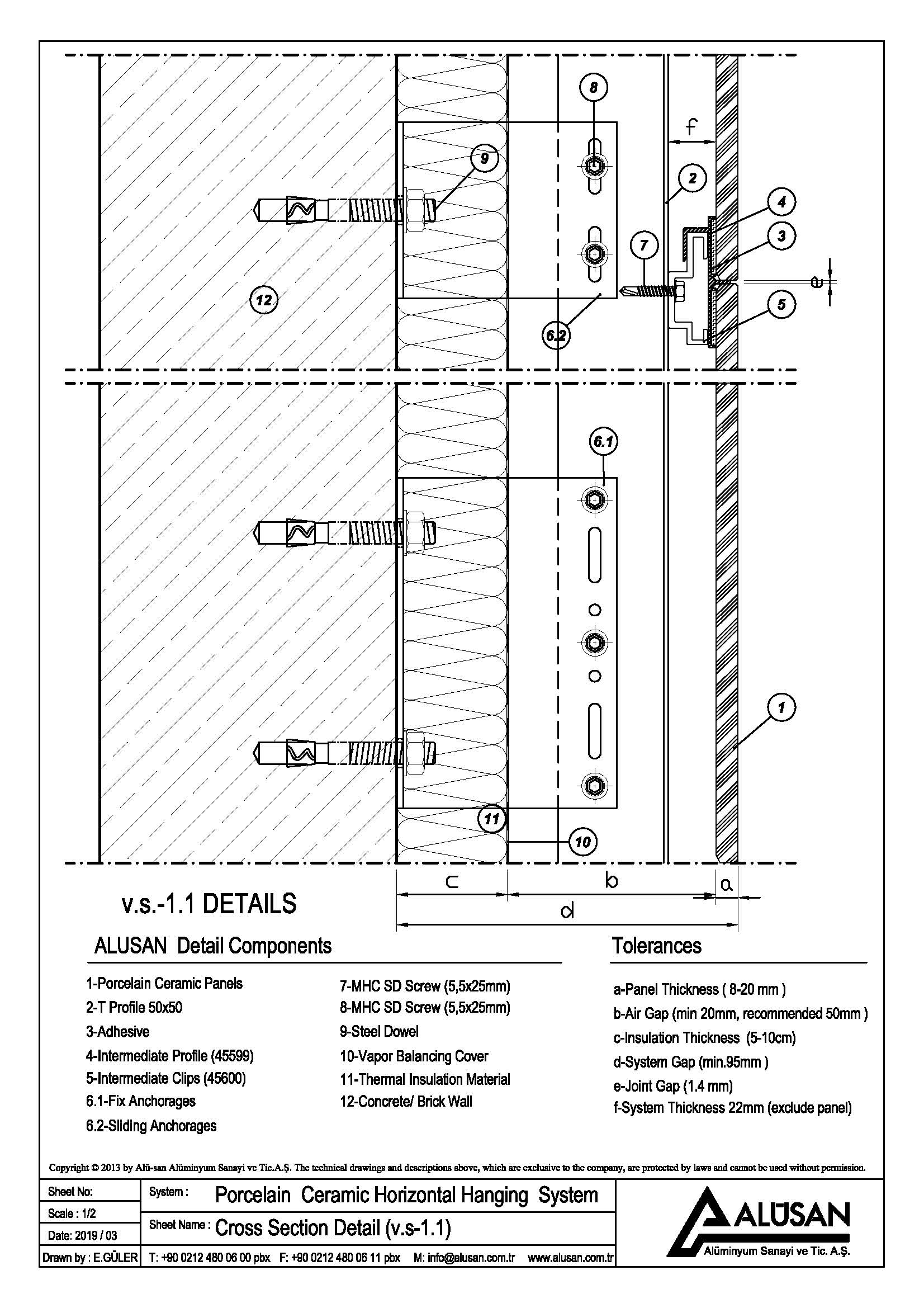
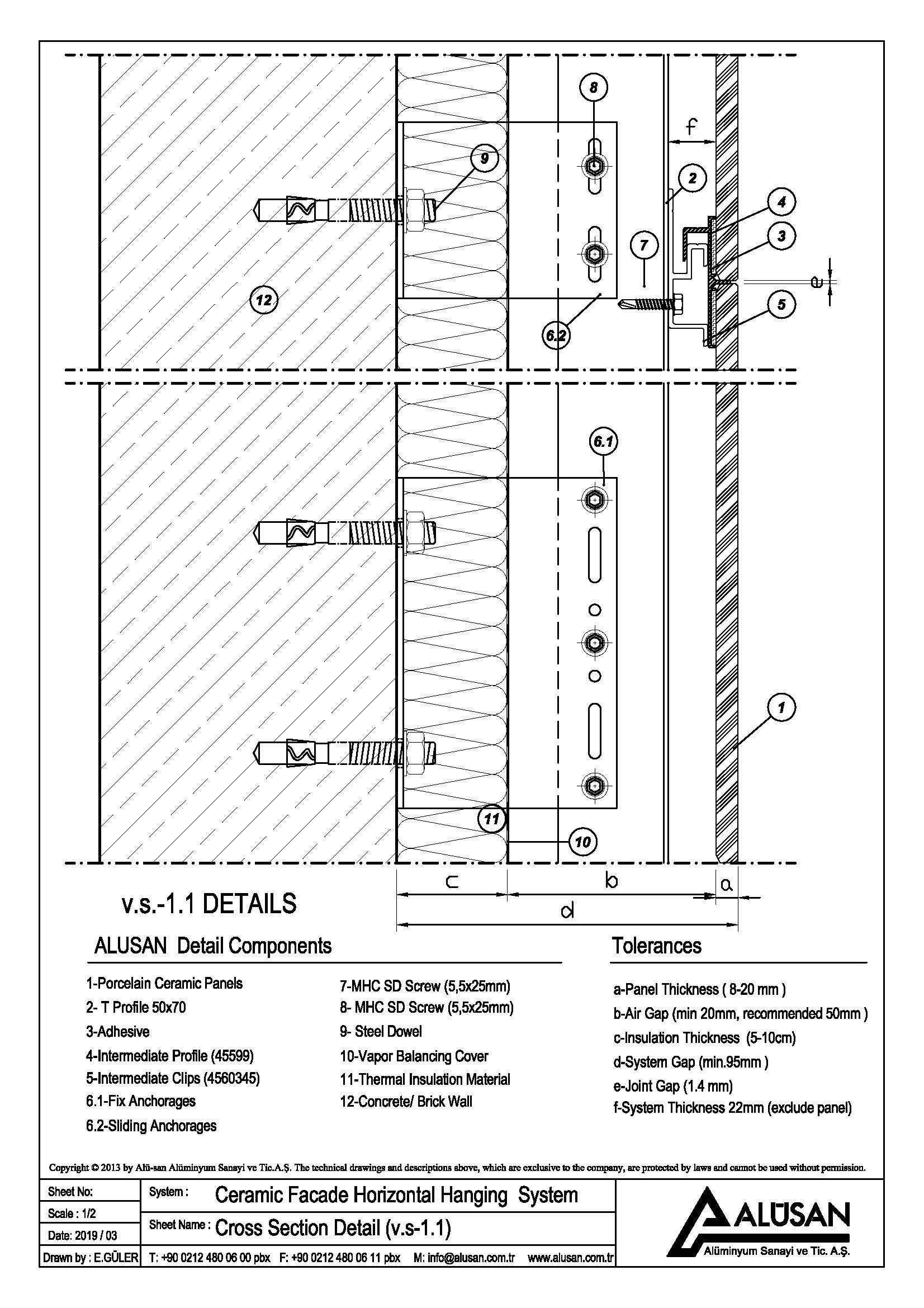
Horizontal Suspended System
In the horizontal suspension system, aluminum clips are fixed on the sub-construction formed by aluminum anchors and Vertical Carrier T Profiles. Ceramic Plates are bonded to the façade using upper, intermediate and lower horizontal profiles. And the coating process is finished by hanging on the carrier clips. The biggest advantage of this system is that vertical joints can be offset and the joint width is 2mm.
